Planujesz budowę wymarzonego domu? Firma Zbuduj Sam Dom przygotowała niezwykłą kolekcję projektów na 2025 rok, która zaspokoi potrzeby najbardziej wymagających inwestorów. W ofercie znajdziesz zarówno nowoczesne, jak i ekonomiczne rozwiązania, łączące funkcjonalność z oszczędnością. Jednym z najbardziej wyróżniających się projektów jest nowość – „Dom na start bez kredytu przedłużony 82 m²”. To idealne rozwiązanie dla osób, które chcą zrealizować swoje marzenie o własnym domu bez konieczności zaciągania długoterminowego kredytu.
Nowość w kolekcji 2025: Dom na start bez kredytu przedłużony 82 m²
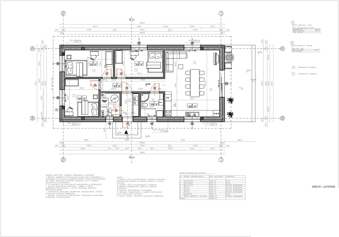
Projekt „Dom na start bez kredytu przedłużony 82 m²” jest odpowiedzią na potrzeby współczesnych rodzin, które pragną budować szybko, tanio i bez nadmiernych zobowiązań finansowych. To kompaktowy, ale funkcjonalny dom, który świetnie sprawdzi się dla rodzin z dziećmi lub par planujących powiększenie rodziny.
Najważniejsze cechy projektu:
- 
Powierzchnia: 82 m², co czyni go idealnym wyborem dla osób szukających niedużego, ale przestronnego domu. 
- 
Liczba pokoi: Projekt oferuje 3 komfortowe sypialnie oraz przestronny salon połączony z aneksem kuchennym. 
- 
Łazienki: 2 w pełni funkcjonalne łazienki, zapewniające wygodę dla całej rodziny. 
- 
Konstrukcja: Prosta bryła budynku z dachem dwuspadowym, co znaczną obniża koszty budowy i eksploatacji. 
- 
Materiały: Projekt przewiduje możliwość zastosowania ekologicznych i energooszczędnych technologii, takich jak pompy ciepła czy panele fotowoltaiczne. 
Korzyści z wyboru projektu "Dom na start bez kredytu przedłużony 82 m²"
- 
Niskie koszty budowy: Prosty projekt i minimalna ilość skomplikowanych elementów konstrukcyjnych pozwalają na oszczędności. 
- 
Możliwość rozbudowy: Dzięki uniwersalnej konstrukcji budynek można w przyszłości rozbudować lub dostosować do zmieniających się potrzeb rodziny. 
- 
Komfort i funkcjonalność: Optymalny układ pomieszczeń zapewnia przestronność i wygodę. 
- 
Ekologiczne rozwiązania: Projekt umożliwia instalację rozwiązań przyjaznych dla środowiska, co pozwala obniżyć koszty utrzymania domu. 
Kolekcja projektów Zbuduj Sam Dom na 2025 rok
Poza „Domem na start bez kredytu przedłużonym 82 m²”, kolekcja na 2025 rok obejmuje wiele innych projektów, dopasowanych do różnych potrzeb i budżetów. Znajdziesz w niej:
- 
Domy parterowe do 100 m²: Idealne dla mniejszych rodzin, seniorów lub osób poszukujących energooszczędnych rozwiązań. 
- 
Nowoczesne domy jednorodzinne: Połączenie estetyki z funkcjonalnością, z uwzględnieniem nowoczesnych technologii. 
- 
Domy modułowe i szkieletowe: Rozwiązania pozwalające na szybki proces budowy oraz maksymalną elastyczność w projektowaniu przestrzeni. 
Każdy z projektów uwzględnia aktualne trendy architektoniczne oraz potrzeby współczesnych inwestorów. W ofercie znajdziesz domy, które mogą być realizowane etapami, co pozwala na rozłożenie kosztów budowy w czasie.
Dlaczego warto wybrać Zbuduj Sam Dom?
Firma Zbuduj Sam Dom to gwarancja wysokiej jakości projektów oraz indywidualnego podejścia do klienta. Każdy projekt można dostosować do własnych potrzeb, korzystając z pomocy doświadczonych architektów i doradców. Dodatkowo firma oferuje wsparcie na każdym etapie budowy – od wyboru projektu, przez zakup materiałów, aż po realizację inwestycji.
Podsumowanie
Jeśli marzysz o własnym domu, ale obawiasz się wysokich kosztów budowy, projekt „Dom na start bez kredytu przedłużony 82 m²” jest doskonałą propozycją. Funkcjonalność, niski koszt budowy oraz możliwość dostosowania do indywidualnych potrzeb sprawiają, że jest to rozwiązanie idealne dla młodych rodzin, które chcą uniknąć długoterminowego zadłużenia. Kolekcja projektów Zbuduj Sam Dom na 2025 rok z pewnością pozwoli Ci znaleźć dom marzeń, który spełni wszystkie Twoje oczekiwania.
 
              